РВВ-7,5-КВз
Вентилятор взрывозащищённый, коррозионностойкий
Заказ РВВ-7,5-КВз
Описание
Назначение
Промышленный радиальный вентилятор высокого давления РВВ-7,5-КВз применяется эксплуатации в системах местной вытяжной вентиляции, приточной и вытяжной общеобменной вентиляции для перемещения взрывоопасных пыле- и газовоздушных смесей категории IIВ.
Коррозионностойкость рабочего тракта вентилятора обеспечивает возможность перемещения вышеуказанных взрывоопасных смесей с входящими агрессивными компонентами согласно Приложению 4 ПБ 03-590-03 (графы: средне- и слабоагрессивная среда для стали 10Х17Н13М3Т).
Маркировка взрывозащиты вентилятора: II Gb c IIBT4.
Аэродинамическая схема обеспечивает высокий КПД при работе с устройствами местной вытяжной вентиляции.
Конструктивные особенности
- Все элементы вентилятора: спиральный корпус, рабочее колесо, входной патрубок выполнены из однородного материала – высоколегированной коррозионностойкой стали 10Х17Н13М3Т ГОСТ 5632-72.
- Конструктивное исполнение радиального вентилятора – «1» (прямой привод) в соответствии с ГОСТ 5976-90. Направление вращения рабочего колеса – правое (указывается стрелкой на передней стенке вентилятора).
- Конструкция вентилятора позволяет устанавливать спиральный корпус под различными углами установки (от 0 до 315° с шагом 45°) нагнетательного отверстия вентилятора относительно исходного нулевого положения. Базовое положение корпуса вентилятора — нагнетательное отверстие вертикально вверх (Пр0°).
- На входном патрубке со стороны рабочего колеса установлено кольцо из неискрящего материала (графитонаполненный капролон), соединённое с патрубком клёпкой.
- На внутренней стороне задней стенки корпуса вентилятора в месте прохода вала электродвигателя установлено бесконтактное лабиринтное уплотнение из неискрящего материала (графитонаполненный капролон). При этом в ступице выполнены отверстия для отсоса газовоздушной смеси от лабиринтного уплотнения.
- С тыльной стороны заднего диска рабочего колеса установлены лопатки для отбора газовоздушной смеси от лабиринтного уплотнения.
- Корпус вентилятора представляет собой жёсткую сварную оболочку, внутри которой располагается обечайка спиральной формы. Герметичность конструкции обеспечивается силиконовым герметиком.
Аэродинамические характеристики

Данные получены при испытаниях на аэродинамическом стенде типа «А» ГОСТ 10921-2017.
Варианты монтажа
- Для монтажа вентиляторов на стену предусмотрены кронштейны.
- Для монтажа вентиляторов стационарно на пол используется подставка.
Примечание:
Кронштейны и подставки в комплект поставки не входят и заказываются отдельно.
Технические характеристики
| РВВ-7,5-КВз | |
|---|---|
| Полное давление, Па | 3600-1600 |
| Производительность, м³/ч | 2000-8000 |
| Тип электродвигателя | АИМ 112М2 |
| Мощность, кВт | 7,5 |
| Напряжение, В | 380 |
| Частота тока, Гц | 50 |
| Частота вращения, об/мин | 2850 |
| Масса, кг | 110 |
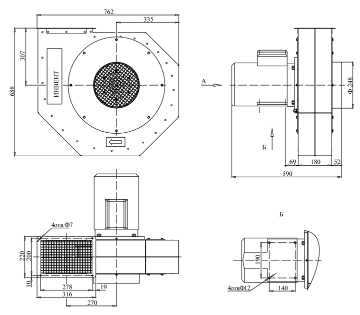
Габариты
Габаритные, присоединительные и установочные размеры вентилятора РВВ-7,5-КВз
